LAFAYETTE HILLS HOUSE

Renovation / New Construction
Lafayette Hills, PA

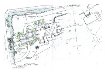
This unique property features historic gardens, an old stone barn, wonderful views, and an existing house that afforded little opportunity for the owners to connect with the surroundings.  RMA replaced an early 20th century addition with a new extension which reconnnects the existing house with the gardens and barn, and designed a new approach to the site which affords views of the entire site and arrival at the formal front of the existing house.

with
Lyman Perry Architects -Design Consultant
Barbara Gisel Design - Interior Design
Cullen Construction - General Contractors

Completion Date:  June 2012